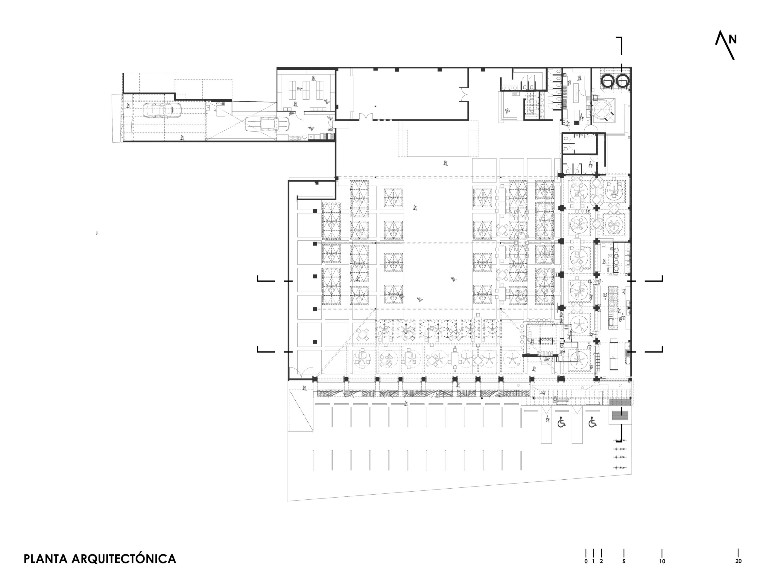
Al centro tenemos una enorme cantina, que pareciera flotar en el lugar, cumpliendo la función de separar y unir, dándonos esa sensación de atravesar desde el espacio familiar, cálido, tradicional hacia una enorme terraza abierta, fresca, moderna, aprovechando el enorme espacio antes ocupado por el salón de fiestas. Ahí, flotando unas nubes de madera, en conjunto con bloques de jardineras móviles delimitan el espacio, a la vez que lo dota de flexibilidad y deja así el protagonismo a la vista hacia el exterior, donde la jardinería y los propios carros en el estacionamiento logran esa separación de la influencia del exterior y te permite así entregarte al disfrute de una rica cocina, un buen trago y sobre todo la compañía de tus seres queridos, los coprotagonistas de tu vida.












